Search

17 Jan 2026

Developers restart Newton Abbot housing project as pledge made to protect ‘priceless’ fen

Campaigners remain concerned about water flow into the rare wetland as construction restarts

Wolborough Fen (Image courtesy: Guy Henderson)

Wolborough Fen (Image courtesy: Guy Henderson)

Developers working on a major housing scheme on the outskirts of Newton Abbot have pledged to do whatever it takes to preserve a “priceless” nature reserve.

Work has restarted at Wolborough after Vistry Homes was ordered to down tools earlier this year amid concerns for the nearby Wolborough Fen.

The fen, an official Site of Special Scientific Interest, is home to rare plants that cannot be found anywhere else in Devon. 

READ NEXT: Devon family launches charity raffle in support of daughter’s bowel cancer fight

Local campaigners say it is “priceless” and fear the effects of water draining into the fen from higher ground. Teignbridge Council issued a stop notice to halt the work.

But Vistry has now resumed its project in the north-west corner of the large site, near Ogwell, saying it has the endorsement of Natural England and the local flood authority that it is working outside the fen’s catchment area.

Vistry also says it is keen to get on with building much-needed homes for local people in Newton Abbot.

“It’s more than housing,” said Vistry South West managing director Pete Sadler. “It’s about history.”

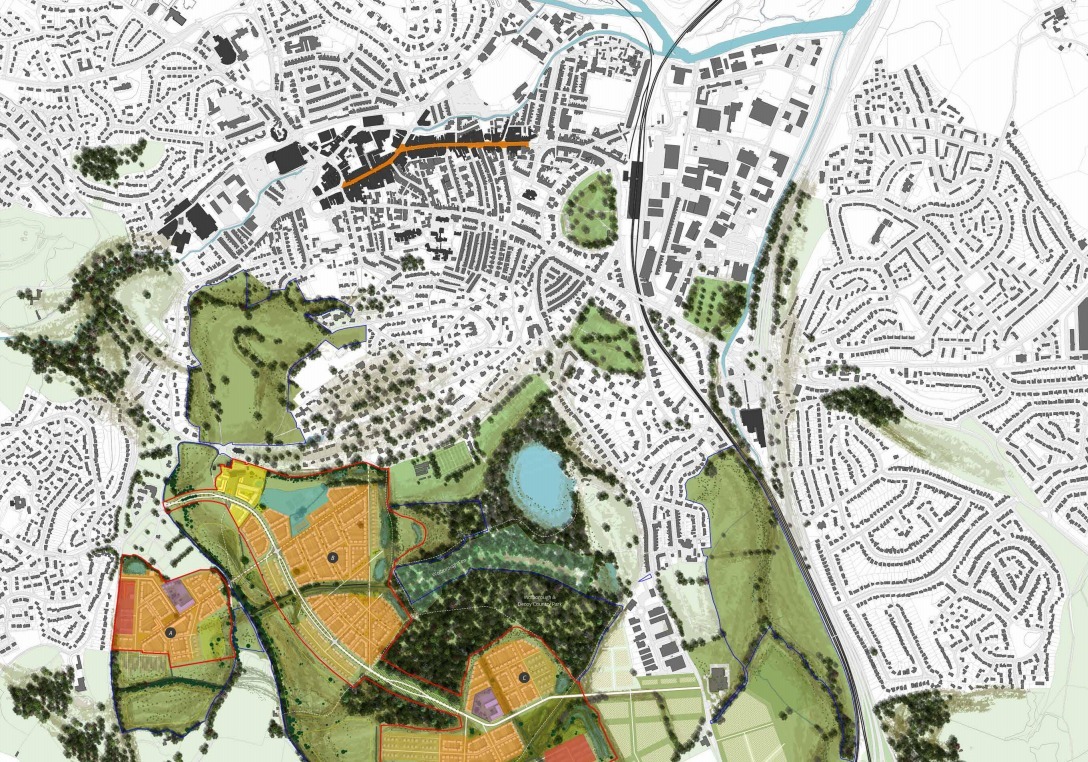
Outline planning permission has already been granted for 1,200 homes in fields stretching from Ogwell across to Kingskerswell Road, with the fen at the heart of the site.

ABOVEThe Wolborough Barton masterplan

Mr Sadler said the fen was a high priority for the company, which has spent three years studying how water flows through the site.

He said: “Natural England, which is the leading authority for the government, has reviewed all the data we’ve provided and says it is happy for us to proceed.

“Work is under way again now, and it is being done with the full knowledge of Teignbridge Council. We are working only on the areas for which we have planning permission.”

Vistry is hoping for a decision from the council this week to discharge two of the planning conditions on the development. It says the report from Natural England means the two conditions relating to drainage no longer apply.

“We haven’t started on those areas yet, but the council has all the information it needs to discharge the conditions, and then we can move forward,” he said.

“The housing need within Teignbridge is huge, with about 1,500 families currently needing a home. Around 330 of those are designated as high need, and the first couple of phases we’re going to build will address some of that demand.

“Hopefully, this time next year we’ll be welcoming our first families in for their Christmas. The sooner we can get started, the better.”

To continue reading this article,
please subscribe and support local journalism!


Subscribing will allow you access to all of our premium content and archived articles.

Subscribe

To continue reading this article for FREE,
please kindly register and/or log in.


Registration is absolutely 100% FREE and will help us personalise your experience on our sites. You can also sign up to our carefully curated newsletter(s) to keep up to date with your latest local news!

Register / Login

Buy the e-paper of the Donegal Democrat, Donegal People's Press, Donegal Post and Inish Times here for instant access to Donegal's premier news titles.

Keep up with the latest news from Donegal with our daily newsletter featuring the most important stories of the day delivered to your inbox every evening at 5pm.